Crossroads

ARCH:363 FALL 16

PROFESSOR: TONY SCHUMAN

An adaptive reuse project located on 240 Dr. Martin Luther King Boulevard, Newark New Jersey. The main objective of this project was to combine the new and the old. The new addition of the building combines with the pre-existing structure to create apartments for work-live residents and as well as for just live residents.

 Diagrams

All vertical circulation is taken out of the building except for the fire stairs.

1-02.jpg

Horizontal axis vs. Vertical axis

2-02.jpg

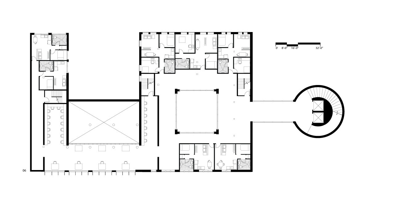
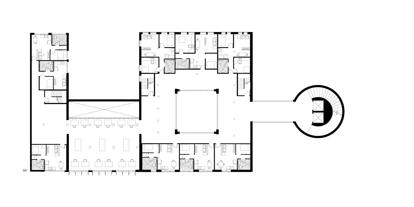
Plans

Sections

6-02.jpg
7-01.jpg
Previous
Previous

Ferrofluid Panel Facade

Next
Next

Reflective Screen