Along the Seine

ARCH: 564 SPRING 19

PROFESSOR: M. STEPHEN ZDEPSKI

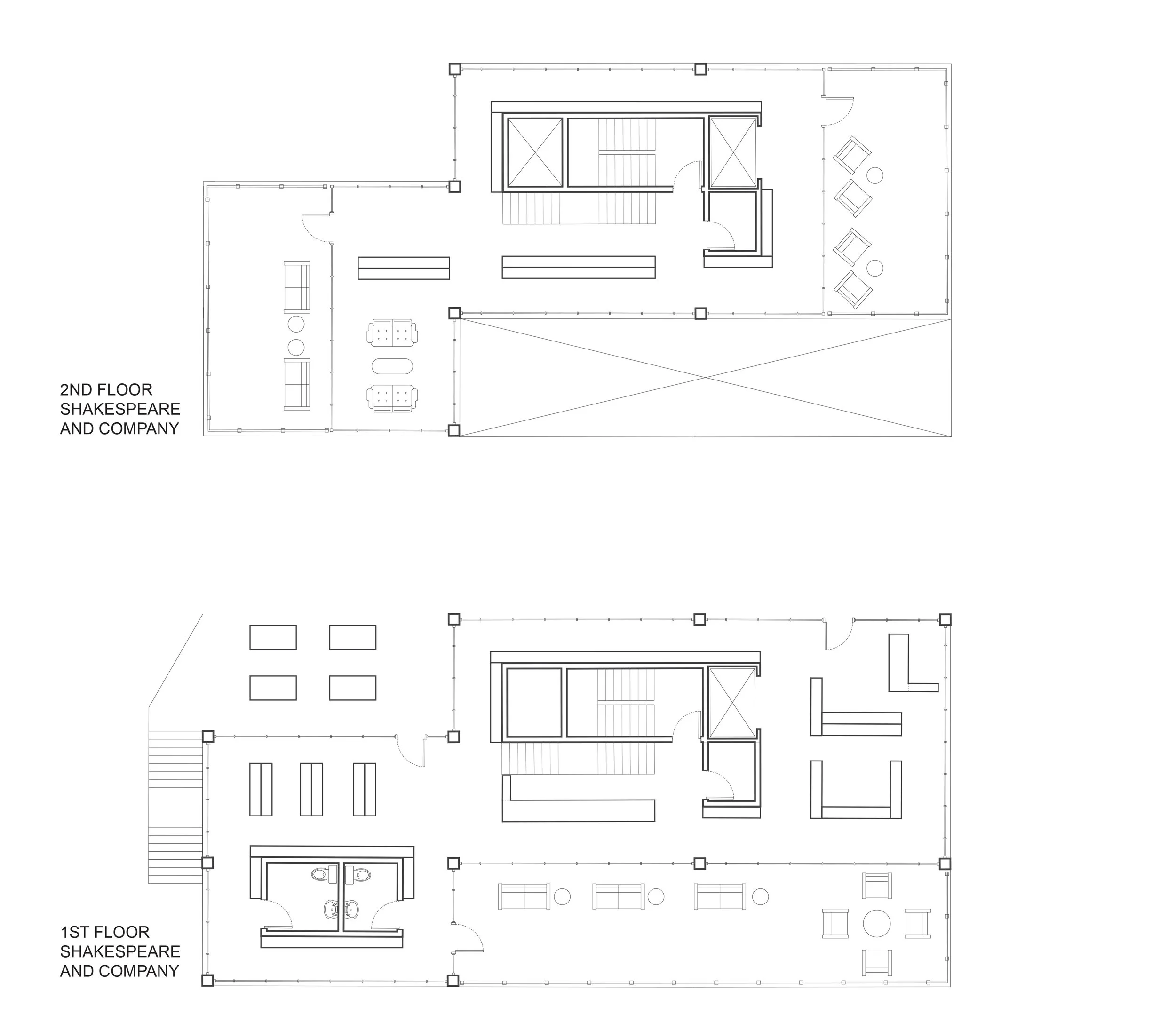
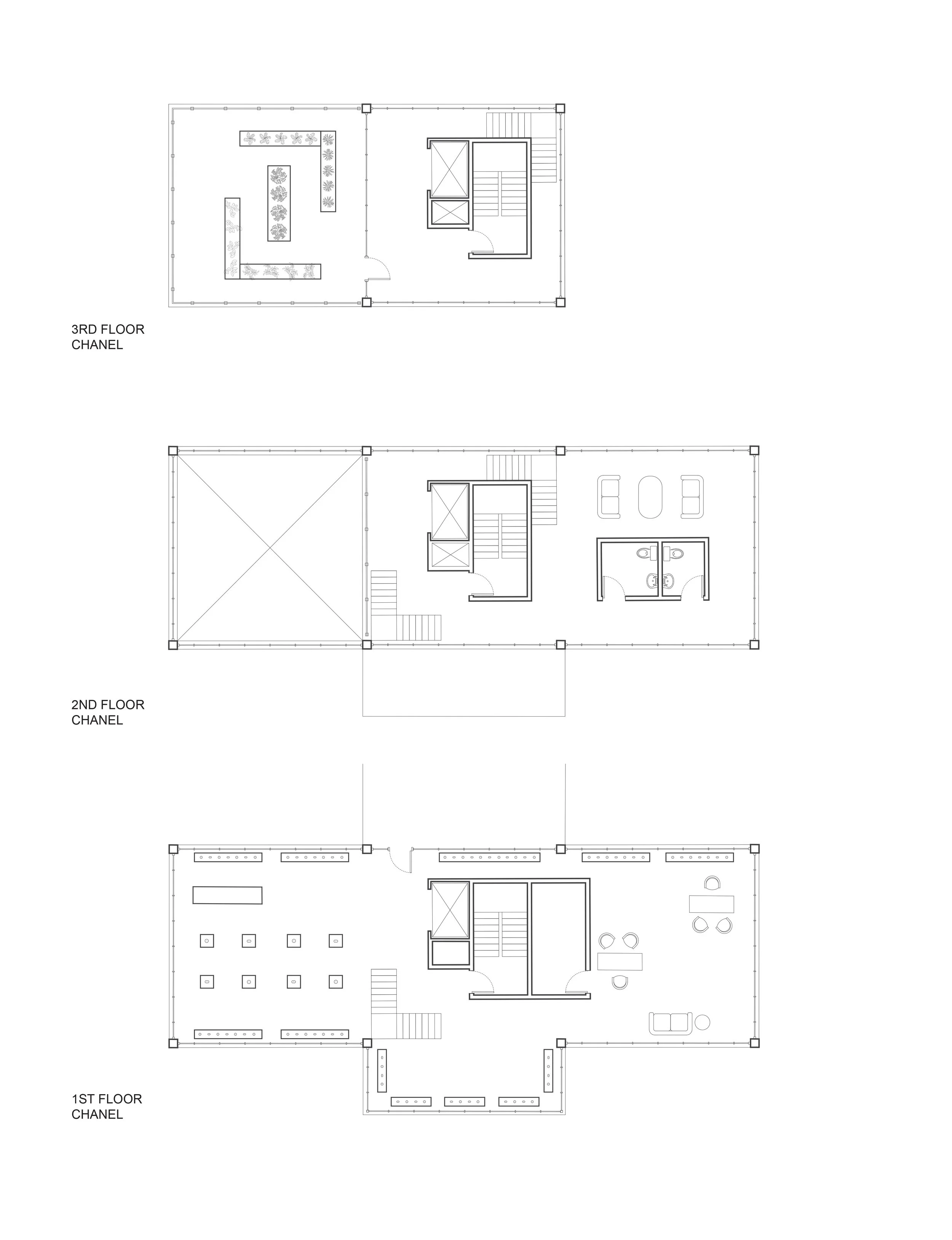
The building site is located in Paris, France along the Seine River. The purpose of the buildings is to heighten the experience along the promenade, boulevard and the shops (Chanel, Shakespeare and Company, March aux Fluers and Cafe de Flore) themselves. The project aims to maintain the majority of the promenade by elevating itself adjacent to the boulevard level. The project acts as four cocoons that unravel along the promenade. The main shops are comprised of glass while a triangular fabric outer facade wraps around the buildings protecting from glare and solar heat gain. Depending on the outside conditions the fabric facade can roll up its sheets to better serve the people. The fabric facade extends along the promenade and acts as canopy structures to promote more public spaces people can occupy. The design of the project relates to the contextual landmarks around the site such as the Louvre Pyramid and the art nouveau Paris metro entrances and inturn acts as a new landmark that fits its surroundings.

DHANESAR_HARINDER_ SITE PLAN.jpg
 
DHANESAR_HARINDER_ FACADE DETAIL-01.jpg
Next
Next

Hai-bot